Вулик — це штучний будинок, побудований людиною для утримання медоносних бджіл. Від його конструкції залежить, наскільки буде сильною і працездатною бджолина сім'я. Крім цього, вулик повинно бути зручно прибирати. У зв'язку з цим великою популярністю користуються споруди Дадана, які можна зібрати самому. Технологія виготовлення таких вуликів описана далі.
Характеристика та історія вулика Дадан
Шарль Дадан — французький бджоляр, який в 1863 році іммігрував до Америки, де незабаром став найбільшим виробником меду. Його весь час захоплювали бджоли, тому головною його завданням у житті була спроба знайти оптимальний спосіб їх утримання і розведення.
В ході своїх численних експериментів і розрахунків він встановив, що молода бджолина матка здатна за день відкласти близько 3000 яєць. Крім цього він з'ясував, що за день бджоли здатні заповнити медом сот на 1600 осередків. Виходячи з цих даних, він зрозумів, що оптимальна кількість рамок у вулику — 12; тоді всього клітинок буде 10500. Ґрунтуючись на ці обчислення, Шарль і створив нову конструкцію вулика, яка була найбільш оптимальною.

У своїй роботі він використовував напрацювання інших винахідників, але і його робота була взята за основу: швейцарець Блатт вирішив оптимізувати розробку Шарля і зробити її більш придатною для європейських бджіл. Тепер стандартні розміри гнізда: 435×300 мм замість 470×300 мм. Магазинні рамки мають габарити 435×145 мм. Часто такий вулик, Дадана-Блатта, виконується бесфальцевым, в той час як дадановский виготовляється фальцевим.
Дадановский вулик являє собою одно - або двокорпусні конструкцію, в яку можна встановити 10, 12, 14 рамок. Несуча частина конструкції має форму куба з фіксованим днищем. Дах виконана просто, та й інші частини конструкції такі ж прості. В цілому вулик даної конструкції дуже зручний в експлуатації. В однокорпусному варіанті на будь-яку кількість рамок його легко транспортувати, зручно контролювати стан сім'ї і вчасно перешкодити роїння, легко підготувати бджолиний будинок до зимівлі і підселити до більш слабкої сім'ї сильну або навпаки.
Переваги і недоліки вулика
- До переваг даного виду вироби можна віднести:
- можливість розводити сім'ї вертикально, що більш природно, ніж горизонтально;
- при використанні двокорпусний конструкції залишається багато вільного місця для розвитку сім'ї, що дозволяє уникнути роїння;
- конструкція вулика така, що з нього легко відкачувати мед з будь-якого рівня споруди;
- поділ рамок на магазинні і гніздові дозволяє збільшити термін служби останніх;
- від хвороб і шкідників бджоли обробляються тільки в гніздовий частини, що дозволяє уникнути потрапляння шкідливих речовин у соти магазинної частини вулика;
- з магазинних рамок мед виходить більш високої якості, ніж з гніздових, і менш схильний кристалізації;
- магазинна надставка має незначну вагу, що дозволяє встановлювати її в поодинці.
- До недоліків слід віднести:
- з-за рівневої конструкції неможливо часто оглядати гніздові рамки, що ускладнює визначення моменту роїння сім'ї;
- так як бджоли відкладають мед в полурамки, а зимують у гніздових сотах, необхідно подбати про підгодівлі в осінньо-зимовий період;
- в зібраному вигляді громіздка конструкція, що ускладнює транспортування, якщо необхідно терміново змінити місце розташування.
Як зробити вулик Дадан своїми руками
Виготовлення дадановского будиночка для бджіл самостійно — справа нескладна. Головне — все правильно розрахувати і слідувати рекомендаціям по виготовленню.
Розрахунок розмірів
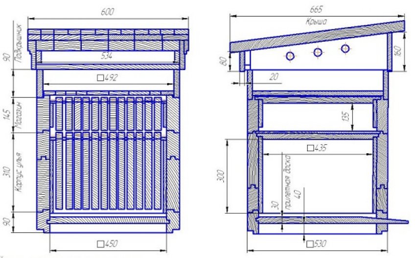
При створенні креслення потрібно враховувати, що у готової конструкції товщина переднього щита 40 мм при висоті 320 мм, а ширину — 530 мм. Задній щит має аналогічні габарити. Бічні щити мають ширину і висоту 480 мм і 320 мм, відповідно. Товщина їх така ж, як у переднього і заднього. Внутрішні габарити конструкції — 450×450×320 мм. Складання деталей вулика проводиться через фальци.
10-рамкова конструкція:

12-рамкова конструкція:

Загальний вигляд конструкції:

Необхідні інструменти і матеріали
Для роботи вам знадобляться:
- дошка столярна (50 мм завтовшки з сухого дерева);
- фанера;
- деревообробний верстат;
- молоток;
- струбцина;
- цвяхи;
- фарба;
- якісний клей для дерев'яних виробів.
Скільки знадобиться пиломатеріалу, залежить від габаритів вибраного виробу.
Особливості збірки
Складання конструкції треба здійснювати поетапно.
Магазин
З дошки потрібно нарізати бруси товщиною 35 мм., Довжина бруса повинна відповідати довжині стінки плюс 25 мм запасу. Після заготівлі склеюються для отримання потрібних габаритів. Повинно бути дві грані по 470 мм і дві грані з 445 мм в довжину, їх висота — 330 мм. Це габарити гніздування; висота магазину повинна бути в 2 рази менше. Описане гніздів'я є десятирамковим.

Фальци
Щоб нормально зібрати конструкцію, необхідно зробити на менших прямокутниках фальци. За Гостом розмір фальца 20×11 мм, але зазвичай вибираються чверті в ширину, відповідну товщині стикувальній деталі. В даному варіанті на меншій деталі з внутрішньої сторони від бічних країв потрібно відступити за 35 мм. Глибина фальца буде 15 мм.
Для встановлення рамок фальци виконуються по ГОСТу. Їх потрібно вибрати по колу по внутрішній частині конструкції. Щоб магазин щільно прилягав до корпусу, у верхній частині гнізда виконується фальц 10×14 мм
Для надставок передбачені такі варіанти:
- нижня внутрішня частина по передній і задній стінці (28×10 мм);
- нижня внутрішня частина бічних стінок (18×10 мм);
- верхня зовнішня частина по передній і задній стінці (4×10 мм);
- верхня зовнішня частина бічних стінок (14×10 мм).
Діафрагма
Діафрагма являє собою розділову дошку на гніздів'я. Її повинно бути дві штуки. Для неї збирається рама з дощок завширшки з внутрішню частину вулика і заввишки трохи менше висоти гнізда. На раму кріпиться аркуш фанери.

Корпус
Корпус збирається подібно описаному раніше магазину.
Розміри 10-рамкової конструкції:
- передній і задній щит (530×320×40 мм);
- бічні щити (490×320×40 мм);
- дно товщиною 380 мм
У холодних регіонах використовують споруди з 14 рамками. Такі вироби найчастіше виконуються двухстенными, так як вимагають додаткового утеплення. Подвійним є і дно, що має обшивку. Внутрішня ширина вулика із-за додавання двох рамок збільшується на 75 мм і дорівнює 510 мм. Так як конструкція виходить габаритної, її частіше використовують без надбудов.

Дно
Дном є щиток, який може бути знімним або фіксованим. У передній частині вулика воно виступає на 35 мм. Тут кріпиться прилетная дошка. Щиток виготовляється з дощок габаритами: 54×48×3,5 см (Д×Ш×Т).
Облаштування вічок
При розмітці стінок вулика потрібно врахувати, що передня стіна повинні бути на 15 мм коротше інших. Цим зазором буде льоток; його бажано обладнати засувкою. Над ним виконується втулка. Її використовують під час збирання бджолиної будиночка по весні, і щоб посилити вентиляцію.
Верхній льоток (25 мм) — отвір, просвердлений на висоті 7 см від верхнього краю корпусу. У надбудовах льоток прорізається по центру передньої стінки. Діаметр той же.
Стелю
Стеля виконується з дощок: 478×80×10 мм (Д×Ш×Т). Їх укладають у фальци, виконані на передній і задній стінці. Щоб у гнізді в зимовий період було тепліше, виготовляється піддашок, у вигляді надставки. Всередині конструкції встановлюються стельові дошки, а простір, що залишився заповнюється утеплювачем.

Габарити піддашка:
- 53,5 см — передня і задня стінки, довжина;
- 50,5 см — боковини, довжина;
- 9 см — ширина;
- 1,5 см — товщина.
Дах
Отъемная покрівля може бути виконана в різних варіантах: двоскатна, односхила, плоска. Виготовляється вона з дощок.
Габарити даху:
- 105 мм — висота обв'язки;
- 535 мм — боковини, довжина;
- 535 мм — торцева частина, довжина;
- 15 мм — товщина.
Особливості утримання бджіл у вулику Дадан
При утриманні бджіл у дадановских вуликах потрібно враховувати, що в період рясного хабар вони швидко заповнюють стільники нектаром, з-за чого обмежується яйцекладка. Це може призвести до ослаблення сім'ї, тому потрібно своєчасно встановлювати магазин.
Принцип утримання бджіл в такому будиночку простий: зимівля комах проходить в єдиному корпусі, підживлення здійснюється під кінець зими. По весні після перевірки вулика до нього додаються рамки з вощиною. Коли сім'я зміцніє після зими, можна доставляти магазини. Їх заміна здійснюється по мірі заповнення.

Розселяється такий будиночок просто:
- Біля нього розташовується аналогічна конструкція, але порожня. У неї переносяться 4-5 рамок з розплодом.
- Має бути кілька відкритих і кілька закритих рамок з розплодом. Спочатку береться перший.
- Під час переміщення рамок потрібно стежити, щоб матка залишалася у старому вулику.
- До рамок з розплодом додають кілька рамок з медом, розміщуючи їх по краях.
- Після цього можна продовжити працювати зі старим бджолиним будиночком. До нього додаються порожні рамки з вощиною на місце вилучених — так, щоб вони були розташовані упереміш з повними.
- Рамка з маткою повинна бути самої крайньої, щодо медових рамок.
- Після того як була додана вощина, укладають розділові грати на корпус і поверх нього розміщується другий.
- Днів через 5-6 потрібно перевірити стан другого корпусу.
- Через тиждень можна буде у другому корпусі додати відсутню кількість рамок до повного комплекту.
Отже, конструкція вулика Дадана проста і ефективна. Її без праці можна зібрати самому, але тільки якщо буде зроблений правильний розрахунок розмірів виробу.








